消防改造
消防維保
主機維修
聯系我們
- 聯系人:郭經理
- 傳真:010-69552656
- 電話:400-0346-119
- 電話:010-57113119
- 郵箱:506665119@qq.com
- 地址:北京通州區新華北路117號
以武漢地鐵7號線為例深度透析氣體滅火在軌道交通中的應用
來源:消防維保 時間:2017-07-25 13:55:28
我們知道軌道交通是當前氣體滅火系統的主要應用領域之一,那么其具體是如何應用的呢?下面我們就以正在執行的武漢軌道交通7號線為例來深入透析。

項目基本情況:
武漢軌道交通7號線一期起于東方馬城,經王家墩,沿建設大道、澳門路,從三陽路過長江,然后折向武昌火車站,沿恒安路、李紙路至終點野芷湖,設停車場、車輛段各1處。7號線一期線路全長30.85km,全為地下線,共設車站19座。穿越了武漢市東西湖區、江漢區、硚口區、江岸區、武昌區、洪山區等6個城區。2014年開工建設,預計2017年建成通車。
武漢軌道交通7號線氣體滅火系統工程由武漢市三江自控成套工程公司總承包,上海海越安全工程設備有限公司提供設計、技術支持及IG541氣體滅火設備供應等。全線合計使用IG541氣體滅火設備HMP80/15HY為1382瓶組(不含備品備件量)。
每套瓶組含:滅火劑瓶組、驅動氣體瓶組、單向閥、連接管、安全泄放裝置、信號反饋裝置、低泄高封閥、選擇閥、減壓裝置、瓶組集流管、選擇閥集流管、儲瓶架、噴嘴、氣路管件及IG541藥劑等部件。

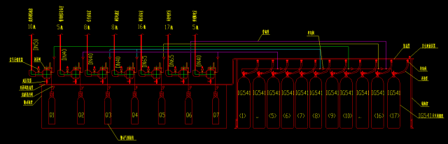
圖一IG541氣體滅火設備設計系統圖舉例
下面我們來簡單了解下現代軌道交通中需要做氣體滅火保護的領域有哪些
主要是用于武漢軌道交通7號線沿線各地下車站:
1、控制室:信號設備室及電源室;通信設備室及電源室;警用通信設備室;環空電控室;屏蔽門控制室;再生吸收裝置室;牽引網室;
2、配電室:照明配電室;配電變壓器及開關柜室;中壓開關柜室;牽引變壓器室;跟隨變電所;整流變壓器室;高壓室及直流開關柜室;
3、機房:商用通信機房。

圖二IG541氣體滅火設備設計系統圖舉例
以上場合選擇氣體滅火設備做消防保護而不選擇水系統和泡沫系統的原因?
我們知道軌道交通特別是地鐵一般人流量大,貴重電氣設備多、價值大,容易發生電氣火災,由于空間較大,防范滅火要求早期滅火,后期滅火難度很大,造成損失也難以預估。
對于貴重設備的電氣火災來說水系統和泡沫系統導電、有腐蝕,容易造成設備的二次損害,不是理想的滅火介質,采用氣體滅火就可很好的避免二次損害。
當然考慮到避免人員窒息和環境污染問題,當前-理想的適用軌道交通的氣體滅火介質還是IG541混合氣體煙烙盡。
軌道交通采用IG541氣體滅火設備具有五大優點:
1、滅火迅速、效率高,滅火后無殘留
2、不導電,不腐蝕,不會給設備造成二次損害
3、無毒無害,不危害人體健康
4、綠色環保,不破壞大氣環境
5、造價合理,與FAS系統連接,實現遠程監控,自動探測滅火,運行穩定可靠
IG541混合氣體是由天然存在于大氣中的氮氣、氬氣和二氧化碳按約52%、10%、8%的比例混合而成,是一種無色、無味、無毒、不導電的氣體,臭氧耗損潛能值ODP=0,溫室效應潛能值GWP=0,其在大氣中存留的時間很短,是一種綠色環保型滅火劑。
武漢軌道交通7號線IG541氣體滅火設備設計采用如下參數:
設計濃度(%) :37.5
95%設計用量的噴放時間(s): 60

圖三IG541氣體滅火設備系統動作原理
目前我國正大力發展城市與城際軌道交通網絡,各地已建或在建項目基本采用IG541氣體滅火設備,應用效果良好且前景廣闊。

